En
Contactez une agence Century 21
Vous souhaitez vendre votre bien ?

Nos experts réalisent une estimation précise et gratuite dans toute la France.

Type de bien à vendre *
Choisir dans la liste
Maison
Appartement
Loft
Villa
Hôtel particulier
Château
Chalet
Nombre de pièces *
Sélectionnez
1
2
3
4
5 et +
Superficie *
Indiquez le numéro de votre rue pour une estimation plus précise
Etre contacté par une agence
Votre demande a été envoyée avec succès !

Suite à votre demande, l'agence vous recontactera dans les meilleurs délais.

Retour aux résultats

référence : 4023 Appartement PARIS 6

2 350 000 €

Honoraires à la charge du vendeur

131 m2

3 chambres

5 pièces

Nous contacter
Planifier une visite

Tour du propriétaire

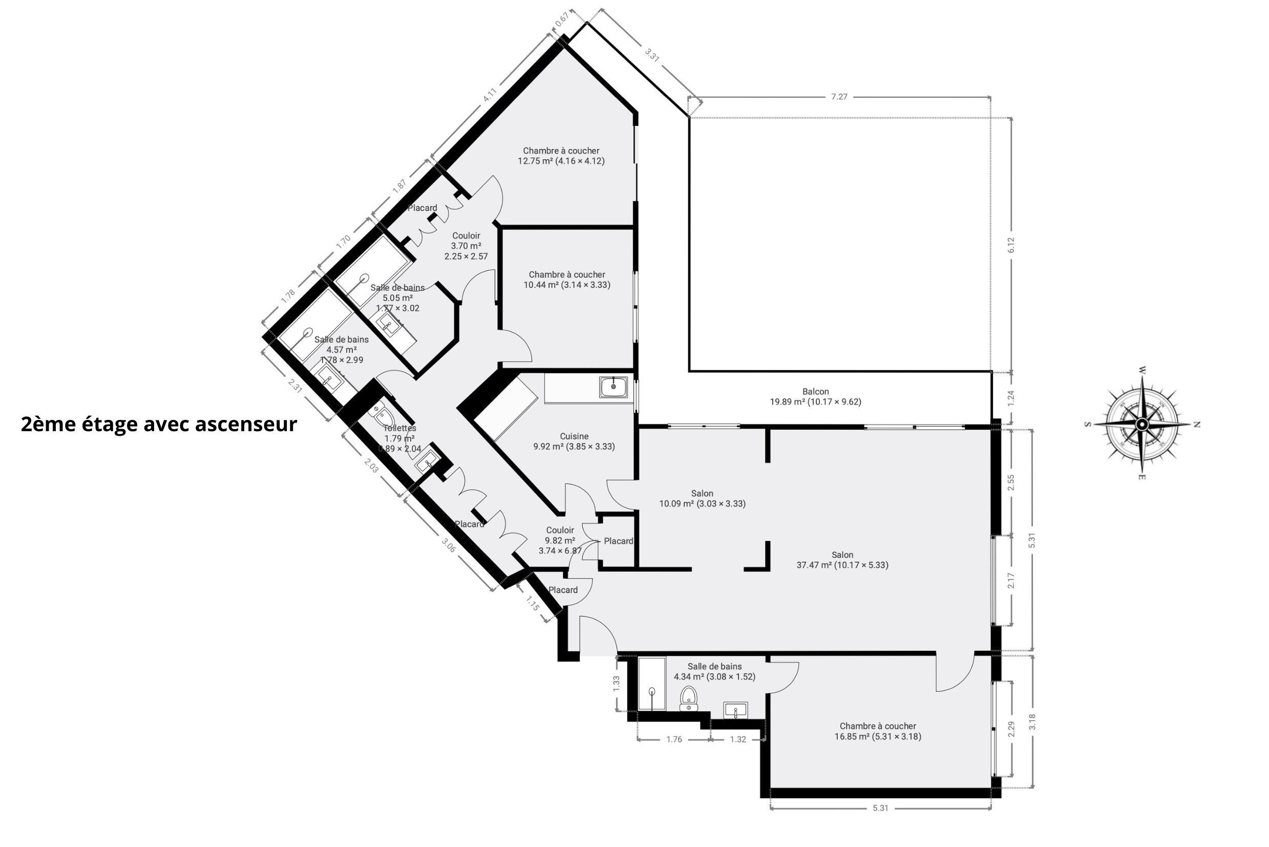
Paris 6eme - RUE STANISLAS
Appartement familial de 130,73 m² avec une terrasse situé au 2ème étage avec ascenseur d'une copropriété de haut standing avec gardien à demeure.
Ce bien bénéficie d'une vue dégagée sur l'église Notre-Dame-des-Champs ainsi que d'une terrasse de 20 m².
Habitable sans travaux, il se compose comme suit : entrée, séjour, salon, cuisine indépendante, trois chambres, salle de bains, deux salles d'eau, ainsi que de deux WC dont un WC invité. Une cave complète ce bien.
Calme et lumineux cet appartement est situé à proximité immédiate des commerces, écoles et transports.

Caractéristiques du bien

Vue globale :

  • Surface totale : 150,7 m2
  • Surface habitable : 131 m2
  • Type d'appartement : T5
  • Nombre de pièces : 5  [Masquer] [Voir le détail]
    • Entrée
    • Séjour (47,6 m²)
    • Chambre (16,9 m²)
    • Chambre (10,4 m²)
    • Chambre (12,8 m²)
    • Cuisine (9,9 m²)
    • Salle de bains (4,6 m²)
    • Salle d'eau (4,3 m²)
    • Salle d'eau (5,1 m²)
    • WC (1,8 m²)
    • couloir (9,8 m²)
    • Dégagement (3,7 m²)
    • Balcon (19,9 m²)
  • Type de construction  : Traditionnelle
  • Année construction  : 1980

Les plus :

  • Vue Rue

Équipements :

  • WC séparés
  • Chauffage : Individuel radiateur electricité
  • Eau chaude : Collective
  • Toiture : Terrasse
  • Ascenseur
  • Balcon
  • Digicode
  • Interphone

Performances énergétiques

logement extrêmement performantlogement extrêmement peu performantconsommationémissions(énergie primaire)21810kWh/m2.ankg CO2/m2.an114 kWh/m²/an d'énergie finalePassoire énergétique
* Dont émissions de gaz à effet de serre peu d'émissions de CO2 Émissions de CO2 très importantes kgCO 2 /m 2 .an 10

Date du DPE : 23/12/2025

Montant estimé des dépenses annuelles d'énergie pour un usage standard entre 2610,0 € et 3570,0 €, indexées à l'année 2023 (abonnements compris).

A savoir

  • Charges / mois : 452 €
  • Taxe foncière : 3071 €
  • Les informations sur les risques auxquels ce bien est exposé sont disponibles sur le site Géorisques :

    Copropriété

    • Nombre de Lots : 132
    • Charges courantes par an : 5424,0 €
    • Pas de procédure en cours
    agence immobilière CENTURY 21 Assas Raspail

    CENTURY 21 Assas Raspail

    131 boulevard Raspail
    75006 PARIS

    +33 (0)1 42 22 72 18

    Contactez-nous

    Envoyer
    Votre message a été envoyé avec succès !

    Vous souhaitez visiter ce bien ?

    Nos experts sont à votre service si vous souhaitez découvrir ce bien d'exception.

    Quand êtes-vous disponible ? *

    Vos coordonnées

    Confirmer ma demande
    Votre message a été envoyé avec succès !