En
Contactez une agence Century 21
Vous souhaitez vendre votre bien ?

Nos experts réalisent une estimation précise et gratuite dans toute la France.

Type de bien à vendre *
Choisir dans la liste
Maison
Appartement
Loft
Villa
Hôtel particulier
Château
Chalet
Nombre de pièces *
Sélectionnez
1
2
3
4
5 et +
Superficie *
Indiquez le numéro de votre rue pour une estimation plus précise
Etre contacté par une agence
Votre demande a été envoyée avec succès !

Suite à votre demande, l'agence vous recontactera dans les meilleurs délais.

  1. Fine Homes
  2. Achat
  3. Achat Maison
  4. Achat maison Ouest Parisien
Retour aux résultats

référence : 437 Maison VERSAILLES - 78 Yvelines

1 393 600 €

Honoraires à la charge du vendeur

233 m2

7 chambres

10 pièces

Nous contacter
Planifier une visite

Tour du propriétaire

Versailles Montreuil.
Century 21 Fels Immobilier a le plaisir de vous présenter, au cœur d'un quartier historique recherché, à proximité immédiate du RER Versailles Rive Droite (ligne L) et de toutes les commodités, cette maison de caractère du début du XX siècle, développant environ 230 m² au sol, et bénéficiant d'un jardin.

Cette maison familiale se distingue par ses volumes généreux et par une configuration rare à Versailles, offrant aujourd'hui six chambres avec la possibilité d'en aménager une septième.

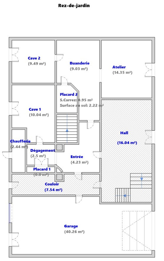
Le rez-de-jardin est dédié aux espaces fonctionnels et annexes. Il comprend une entrée, une buanderie, une chaufferie, plusieurs caves, un atelier, ainsi qu'un garage double en enfilade de plus de 40 m², apportant un confort particulièrement appréciable en cœur de ville.

Le premier étage, véritable étage de réception, accueille un double séjour, une salle à manger et une cuisine, formant un espace de vie lumineux et convivial, avec un accès direct à la terrasse et au jardin, ainsi que des WC.

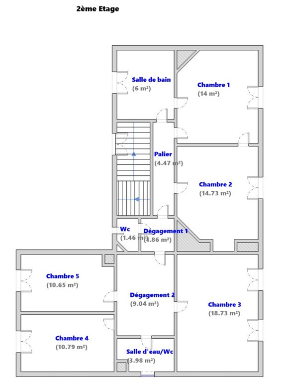
Le deuxième étage est entièrement dédié à l'espace nuit et propose cinq chambres, une salle de bains, une salle d'eau et des WC, offrant une distribution idéale pour une grande famille.

Le troisième étage accueille une sixième chambre ainsi qu'un bureau, ce dernier pouvant aisément être transformé en septième chambre selon les besoins.

Une maison rare par sa capacité d'accueil, son potentiel et sa localisation. Son charme de l'ancien, ses hauteurs sous plafond, ses éléments architecturaux préservés et son agréable jardin en font un bien d'exception, idéal pour une famille en quête d'espace, de cachet et de qualité de vie au cœur de Versailles.

Caractéristiques du bien

Vue globale :

  • Surface totale : 337,7 m2
  • Surface habitable : 233 m2
  • Surface terrain : 591 m2
  • Nombre de pièces : 10  [Masquer] [Voir le détail]
    • garage (40,3 m²)
    • Entrée1 (4,2 m²)
    • Degagement 1 (2,5 m²)
    • placard (0,8 m²)
    • Cave (2,4 m²)
    • Cave (10,0 m²)
    • Cave (9,5 m²)
    • Buanderie (9,0 m²)
    • Atelier (14,4 m²)
    • placard (1,0 m²)
    • Palier (3,9 m²)
    • Entrée (5,6 m²)
    • WC (1,5 m²)
    • Salle d'eau (1,5 m²)
    • Cuisine salle à manger pièce à vivre (22,0 m²)
    • Chambre (12,5 m²)
    • Entrée 2 (11,7 m²)
    • Séjour (28,6 m²)
    • Salle a manger (18,8 m²)
    • Cuisine (9,3 m²)
    • Terrasse
    • placard (1,0 m²)
    • WC (1,7 m²)
    • Palier (4,5 m²)
    • Salle de bain (6 m²)
    • Chambre 1 (14 m²)
    • Chambre 2 (14,7 m²)
    • Chambre 3 (18,7 m²)
    • Chambre 4 (10,8 m²)
    • Chambre 5 (10,7 m²)
    • Salle d'eau/WC (4,0 m²)
    • WC (1,5 m²)
    • Dégagement (1,9 m²)
    • Dégagement (9,0 m²)
    • Bureau (7,0 m²)
    • Palier (0,6 m²)
    • placard (0,8 m²)
    • Chambre 6 (14,2 m²)

Les plus :

  • Garage
  • Vue Jardin

Équipements :

  • Garage : 2 place(s)
  • Chauffage : Individuel radiateur gaz
  • Eau chaude : Ballon électrique
  • Façade : Meulière
  • Cheminée, double vitrage
  • Isolation : Double vitrage

Performances énergétiques

logement extrêmement performantlogement extrêmement peu performantconsommationémissions(énergie primaire)31139kWh/m2.ankg CO2/m2.an281 kWh/m²/an d'énergie finalePassoire énergétique
* Dont émissions de gaz à effet de serre peu d'émissions de CO2 Émissions de CO2 très importantes kgCO 2 /m 2 .an 39

Date du DPE : 22/03/2024

Montant estimé des dépenses annuelles d'énergie pour un usage standard entre 3660,0 € et 5020,0 €, indexées à l'année 2021 (abonnements compris).

A savoir

  • Taxe foncière : 4836 €
  • Les informations sur les risques auxquels ce bien est exposé sont disponibles sur le site Géorisques :

    Bien proposé par Yoann robert heidmann EI, agent commercial (RSAC 943407940)

    Copropriété

    • Nombre de Lots : 3
    • Charges courantes par an : 10,0 €
    • Pas de procédure en cours
    agence immobilière CENTURY 21 Fels Immobilier

    CENTURY 21 Fels Immobilier

    8 rue de Montreuil
    78000 VERSAILLES

    +33 (0)1 84 74 68 00

    Contactez-nous

    Envoyer
    Votre message a été envoyé avec succès !

    Ces biens similaires pourraient vous intéresser


    Vous souhaitez visiter ce bien ?

    Nos experts sont à votre service si vous souhaitez découvrir ce bien d'exception.

    Quand êtes-vous disponible ? *

    Vos coordonnées

    Confirmer ma demande
    Votre message a été envoyé avec succès !