Agences immobilières CENTURY 21 : immobilier, achat, vente, location et activités de gestion immobilière
  1. Accueil
  2. Achat
  3. Achat Terrain
  4. Achat Terrain Dordogne (24)
  5. Achat Terrain PRATS DE CARLUX (24370)

Terrain à vendre 4477 m2 PRATS DE CARLUX - 24

Ref : 5602

35 000 €

  • Honoraires charge vendeur
Terrain à vendre - 4477 m2 - Prats De Carlux - 24 - AQUITAINE
Terrain à vendre - 4477 m2 - Prats De Carlux - 24 - AQUITAINE
Terrain à vendre - 4477 m2 - Prats De Carlux - 24 - AQUITAINE
Terrain à vendre - 4477 m2 - Prats De Carlux - 24 - AQUITAINE
Terrain à vendre - 4477 m2 - Prats De Carlux - 24 - AQUITAINE
Terrain à vendre - 4477 m2 - Prats De Carlux - 24 - AQUITAINE
Terrain à vendre - 4477 m2 - Prats De Carlux - 24 - AQUITAINE
Terrain à vendre - 4477 m2 - Prats De Carlux - 24 - AQUITAINE
Terrain à vendre - 4477 m2 - Prats De Carlux - 24 - AQUITAINE
Terrain à vendre - 4477 m2 - Prats De Carlux - 24 - AQUITAINE
Exclusivité
Envoyer un message
Message
Envoyer ce bien à un ami

Description

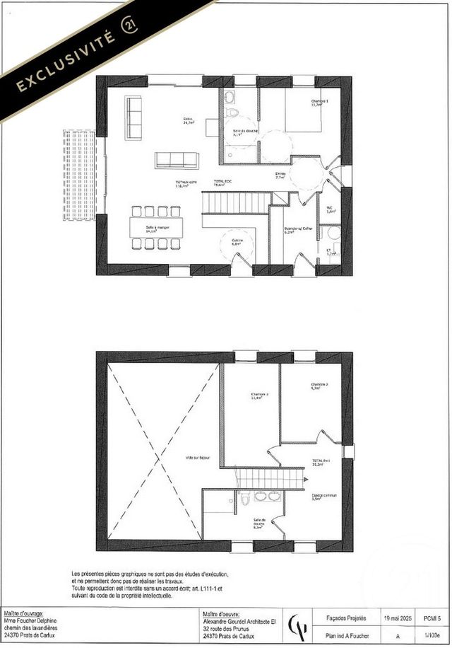
PRATS DE CARLUX, grand terrain d'une superficie totale de 4 477 m² dont une partie constructible de 1 019 m².

Sans aucune obligation, mais si le projet vous en dit, un permis de construire d'un superbe séchoir à tabac habitable à déjà été accepté.
(projet visible en photo)

Si celui-ci ne vous convient pas, un permis modificatif pourra être demandé.

Et de plus, un bornage a également été financé en amont, ce qui n'est pas négligeable pour votre future enveloppe.

Pour plus d'informations, notre équipe est à votre service du lundi au vendredi de 9h00 à 12h00 et de 14h00 à 18h30 et le samedi de 9h00 à 12h00 au 844 Avenue Simone Veil 24200 SARLAT-LA-CANEDA ; mais aussi au 51 Boulevard des Martyrs 46300 GOURDON.

Vue globale

  • Surface totale : 4477 m2

À savoir

Les performances énergétiques

Non soumis au DPE
Bien proposé par Fabien langlois EI, agent commercial (RSAC 919857409)

Ce bien est proposé par l'agence CENTURY 21 Patrimoine 24

CENTURY 21 Patrimoine 24

CENTURY 21 Patrimoine 24

844 avenue Simone Veil

24200 SARLAT LA CANEDA

05 53 29 24 21
qualitelis Votre agence est notée
Achat Vente
9,4/10
Location Gestion
9,5/10

Nos offres

Notre agence immobilière à Sarlat la caneda vous propose :

Demande d'information sur ce terrain à PRATS DE CARLUX (24)

Envoyer

Envoyer à un ami

Envoyer

Créer votre alerte

Rappel de vos critères de recherche :

Erreur dans les critères envoyés

Limite d'alertes atteinte

Cette alerte existe déjà

Cette alerte est déjà enregistrée pour cette adresse email. Vous continuerez à recevoir les biens correspondant à vos critères.

Une erreur est survenue

Merci de réessayer ultérieurement.

Votre alerte a été créée

Vous recevrez les biens correspondant à vos critères.

logo vente privées

48h

d’avance sur
le marché

Prenez un temps d’avance sur le marché en profitant gratuitement des Ventes Privées CENTURY 21

Si ce n’est déjà fait, allez compléter le profil de votre compte afin de pouvoir recevoir en avant-première des biens exclusifs, réservés à nos clients pendant les 48 premières heures suivant leur commercialisation.

Nos agences proposent régulièrement des biens comme celui que vous cherchez

Ne ratez pas une opportunité, on vous alerte en priorité !

Êtes-vous actuellement propriétaire de votre bien ?
Créer une alerte
Je souhaite être alerté
Voir les biens correspondants