Agences immobilières CENTURY 21 : immobilier, achat, vente, location et activités de gestion immobilière
  1. Accueil
  2. Location
  3. Location Appartement
  4. Location Appartement Essonne (91)
  5. Location Appartement LONGJUMEAU (91160)

Appartement F2 à louer 2 pièces - 46,15 m2 LONGJUMEAU - 91

Ref : 1747

843 €

par mois charges comprises

Appartement F2 à louer - 2 pièces - 46,15 m2 - Longjumeau - 91 - ILE-DE-FRANCE
Appartement F2 à louer - 2 pièces - 46,15 m2 - Longjumeau - 91 - ILE-DE-FRANCE
Exclusivité

Description

CENTURY21 LD IMMOBILIER à VILLEBON SUR YVETTE vous présente, à proximité des commerces et des transports un appartement de types 2 pièces offrant une entrée avec placard, un séjour lumineux, une cuisine indépendante aménagée, une salle de bains avec WC, rangements, balcon.

Les charges comprennent : entretien des parties communes et eau froide.

Le bien dispose d'une place de stationnement en sous-sol.

Disponible à partir du 07 mai 2026.

Vue globale

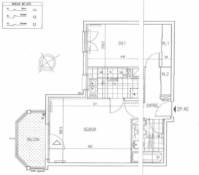
  • Surface totale : 46,2 m2
  • Surface habitable : 46,2 m2
  • Type d'appartement : F2
  • Étage : 2ème
  • Nombre de pièces : 2
    • Entrée (3,8 m2)
    • Séjour (19,1 m2)
    • Chambre (10,8 m2)
    • Cuisine (5,5 m2)
    • Salle de bains (4,2 m2)
    • Placard (2,8 m2)
  • Année construction : 1999

Équipements

Les plus

P

Parking couvert

Général

  • Parking couvert : 1 place(s)
  • Chauffage : Individuel radiateur gaz
  • Eau chaude : Chaudière gaz
  • Interphone

À savoir

  • Loyer de base : 783 € par mois
  • Provision pour charges : 60 €, soumise à régularisation annuelle
  • Honoraires charge locataire : 599,95 € dont :
    • Visite, constitution dossier, rédaction de bail : 461,50 €
    • Etablissement état des lieux : 138,45 €
  • Dépôt de garantie : 783 €

Les performances énergétiques

logement extrêmement performantlogement extrêmement peu performantconsommationémissions(énergie primaire)16132kWh/m2.ankg CO2/m2.anPassoire énergétique
* Dont émissions de gaz à effet de serre peu d'émissions de CO2 Émissions de CO2 très importantes kgCO 2 /m 2 .an 32

Date du DPE : 14/04/2026

Montant estimé des dépenses annuelles d'énergie pour un usage standard entre 835,0 € et 1129,0 € indexées aux années 2021, 2022, 2023 (abonnements compris).

Ce bien est proposé par l'agence CENTURY 21 LD Immobilier

CENTURY 21 LD Immobilier

CENTURY 21 LD Immobilier

6-7 Place Gérard Nevers

91140 VILLEBON SUR YVETTE

01 69 31 91 91
qualitelis Votre agence est notée
Achat Vente
9,2/10
Location Gestion
9,5/10

Nos offres

Notre agence immobilière à Villebon sur yvette vous propose :

Demande d'information sur cet appartement de 2 pièces à LONGJUMEAU (91)

Envoyer

Envoyer à un ami

Envoyer

Créer votre alerte

Rappel de vos critères de recherche :

Erreur dans les critères envoyés

Limite d'alertes atteinte

Cette alerte existe déjà

Cette alerte est déjà enregistrée pour cette adresse email. Vous continuerez à recevoir les biens correspondant à vos critères.

Une erreur est survenue

Merci de réessayer ultérieurement.

Votre alerte a été créée

Vous recevrez les biens correspondant à vos critères.

logo vente privées

48h

d’avance sur
le marché

Prenez un temps d’avance sur le marché en profitant gratuitement des Ventes Privées CENTURY 21

Si ce n’est déjà fait, allez compléter le profil de votre compte afin de pouvoir recevoir en avant-première des biens exclusifs, réservés à nos clients pendant les 48 premières heures suivant leur commercialisation.

Nos agences proposent régulièrement des biens comme celui que vous cherchez

Ne ratez pas une opportunité, on vous alerte en priorité !

Êtes-vous actuellement propriétaire de votre bien ?
Créer une alerte
Je souhaite être alerté
Voir les biens correspondants