Agences immobilières CENTURY 21 : immobilier, achat, vente, location et activités de gestion immobilière
  1. Accueil
  2. Achat
  3. Achat Appartement
  4. Achat Appartement Manche (50)
  5. Achat Appartement BARNEVILLE CARTERET (50270)

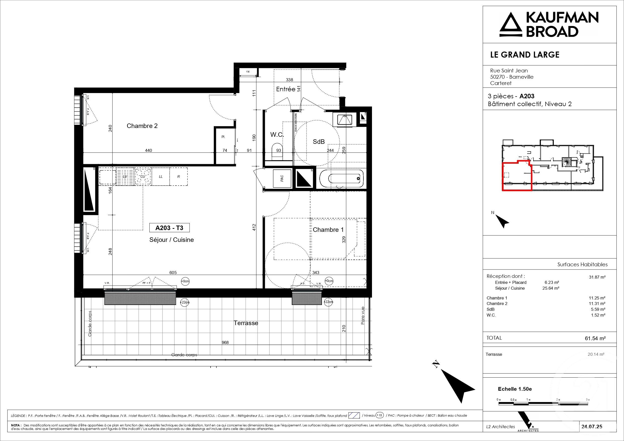
Appartement F3 à vendre 3 pièces - 61,54 m2 BARNEVILLE CARTERET - 50

Ref : 1893

262 000 €

  • Honoraires charge vendeur
Appartement F3 à vendre - 3 pièces - 61,54 m2 - Barneville Carteret - 50 - BASSE-NORMANDIE
Appartement F3 à vendre - 3 pièces - 61,54 m2 - Barneville Carteret - 50 - BASSE-NORMANDIE
Appartement F3 à vendre - 3 pièces - 61,54 m2 - Barneville Carteret - 50 - BASSE-NORMANDIE
Envoyer un message
Message
Envoyer ce bien à un ami

Description

À Barneville-Carteret, l'agence Century 21 Chevet Immobilier vous présente ce nouveau programme immobilier "LE GRAND LARGE".
Ce domaine composé d'appartements du 2 au 4 pièces et de maisons de 2 à 4 chambres vous offre un cadre de vie privilégié, proche des commerces et à 10 minutes en vélo de la plage.
Vous profiterez d'une résidence écoresponsable à haute performance énergétique.
Principale station balnéaire de la Côte des Isles, face aux Isles Anglo-Normandes, Barneville-Carteret est apprécié pour son port de plaisance, ses grandes plages, ses nombreux restaurants et commerces.
Livraison à partir du 4ème tri. 2027

Vue globale

  • Surface totale : 61,5 m2
  • Surface habitable : 61,5 m2
  • Type d'appartement : F3
  • Étage : 3ème
  • Nombre de pièces : 3
    • Entrée (6,2 m2)
    • Séjour-Cuisine (25,6 m2)
    • Chambre 1 (11,3 m2)
    • Chambre 2 (11,3 m2)
    • Salle de bains (5,6 m2)
    • WC (1,5 m2)
    • Terrasse (20,1 m2)
  • Type de construction : Traditionnelle
  • Année construction : 2026

Équipements

Les plus

P

Parking exterieur

Terrasse

Général

  • Parking exterieur : 1 place(s)
  • WC séparés
  • Chauffage : Individuel radiateur pompe à chaleur
  • Eau chaude : Chaudière
  • Ascenseur
  • Interphone
  • Volets roulants

À savoir

Les performances énergétiques

Non soumis au DPE

Ce bien est proposé par l'agence CENTURY 21 Chevet Immobilier

CENTURY 21 Chevet Immobilier

CENTURY 21 Chevet Immobilier

15 rue des Halles

50270 BARNEVILLE CARTERET

02 33 94 69 06
qualitelis Votre agence est notée
Achat Vente
9,5/10

Nos offres

Notre agence immobilière à Barneville carteret Rue des Halles vous propose :

Demande d'information sur cet appartement de 3 pièces à BARNEVILLE CARTERET (50)

Envoyer

Envoyer à un ami

Envoyer

Créer votre alerte

Rappel de vos critères de recherche :

Erreur dans les critères envoyés

Limite d'alertes atteinte

Cette alerte existe déjà

Cette alerte est déjà enregistrée pour cette adresse email. Vous continuerez à recevoir les biens correspondant à vos critères.

Une erreur est survenue

Merci de réessayer ultérieurement.

Votre alerte a été créée

Vous recevrez les biens correspondant à vos critères.

logo vente privées

48h

d’avance sur
le marché

Prenez un temps d’avance sur le marché en profitant gratuitement des Ventes Privées CENTURY 21

Si ce n’est déjà fait, allez compléter le profil de votre compte afin de pouvoir recevoir en avant-première des biens exclusifs, réservés à nos clients pendant les 48 premières heures suivant leur commercialisation.

Nos agences proposent régulièrement des biens comme celui que vous cherchez

Ne ratez pas une opportunité, on vous alerte en priorité !

Êtes-vous actuellement propriétaire de votre bien ?
Créer une alerte
Je souhaite être alerté
Voir les biens correspondants