Agences immobilières CENTURY 21 : immobilier, achat, vente, location et activités de gestion immobilière
  1. Accueil
  2. Achat
  3. Achat Appartement
  4. Achat Appartement Eure-et-Loir (28)
  5. Achat Appartement CHARTRES (28000)

Appartement F3 à vendre 3 pièces - 53,74 m2 CHARTRES - 28

Ref : 3106

164 900 €

  • Honoraires charge vendeur
Appartement F3 à vendre - 3 pièces - 53,74 m2 - Chartres - 28 - CENTRE
Appartement F3 à vendre - 3 pièces - 53,74 m2 - Chartres - 28 - CENTRE
Appartement F3 à vendre - 3 pièces - 53,74 m2 - Chartres - 28 - CENTRE
Appartement F3 à vendre - 3 pièces - 53,74 m2 - Chartres - 28 - CENTRE
Appartement F3 à vendre - 3 pièces - 53,74 m2 - Chartres - 28 - CENTRE
Envoyer un message
Message
Envoyer ce bien à un ami

Description

Votre agence Century 21 Universal Demeure EPERNON vous présente en exclusivité les Agences Unies :

Au cœur de CHARTRES, dans un environnement vivant et recherché, découvrez cet appartement de 54 m² vendu meublé, situé au premier étage d'un immeuble bien entretenu.

Dès l'entrée, la lumière naturelle met en valeur un séjour agréable avec espace salle à manger, prolongé par une cuisine aménagée fonctionnelle. L'ensemble offre une atmosphère simple et chaleureuse, prête à vivre.

L'espace nuit se compose d'une chambre confortable, d'une salle d'eau et de WC séparés. Les rangements intégrés et le parquet apportent à l'ensemble une touche de charme discret et de praticité au quotidien.

L'adresse constitue un véritable atout : tout se fait à pied. Commerces, établissements scolaires de la maternelle au lycée, gare, mais aussi les lieux de vie culturelle, cinéma, théâtre, conservatoire, ainsi que restaurants et marchés, sont accessibles en quelques minutes seulement.

Un appartement idéal pour une première acquisition, un pied-à-terre ou un investissement locatif, dans une ville dynamique où la vie s'organise facilement sans voiture.

Honoraires selon le barème de l'agence, consultable sur notre site internet (document des barèmes page 12)

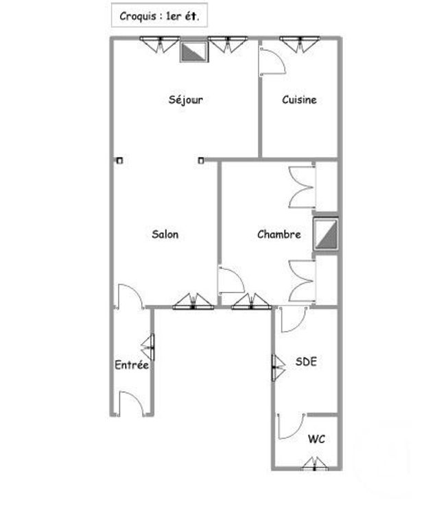
Vue globale

  • Surface totale : 53,7 m2
  • Surface habitable : 53,7 m2
  • Type d'appartement : F3
  • Étage : 1er
  • Nombre de pièces : 3
    • Entrée (2,4 m2)
    • Séjour (12,3 m2)
    • Salon (12,2 m2)
    • Cuisine (7,1 m2)
    • Chambre (14,4 m2)
    • Salle d'eau (3,7 m2)
    • WC (1,6 m2)

Équipements

Général

  • Chauffage : Individuel convecteurs electricité
  • Eau chaude : Ballon électrique

À savoir

Copropriété

  • Nombre de Lots : 4
  • Charges courantes par an : 1,0 €
  • Pas de procédure en cours

Les performances énergétiques

logement extrêmement performantlogement extrêmement peu performantconsommationémissions(énergie primaire)2289kWh/m2.ankg CO2/m2.anPassoire énergétique
* Dont émissions de gaz à effet de serre peu d'émissions de CO2 Émissions de CO2 très importantes kgCO 2 /m 2 .an 9

Date du DPE : 14/03/2022

Ce bien est proposé par l'agence CENTURY 21 Universal Demeure

CENTURY 21 Universal Demeure

CENTURY 21 Universal Demeure

25 rue Bourgeoise

28230 EPERNON

02 37 83 57 10
qualitelis Votre agence est notée
Achat Vente
9,1/10

Nos offres

Notre agence immobilière à Epernon Rue Bourgeoise vous propose :

Demande d'information sur cet appartement de 3 pièces à CHARTRES (28)

Envoyer

Envoyer à un ami

Envoyer

Créer votre alerte

Rappel de vos critères de recherche :

Erreur dans les critères envoyés

Limite d'alertes atteinte

Cette alerte existe déjà

Cette alerte est déjà enregistrée pour cette adresse email. Vous continuerez à recevoir les biens correspondant à vos critères.

Une erreur est survenue

Merci de réessayer ultérieurement.

Votre alerte a été créée

Vous recevrez les biens correspondant à vos critères.

logo vente privées

48h

d’avance sur
le marché

Prenez un temps d’avance sur le marché en profitant gratuitement des Ventes Privées CENTURY 21

Si ce n’est déjà fait, allez compléter le profil de votre compte afin de pouvoir recevoir en avant-première des biens exclusifs, réservés à nos clients pendant les 48 premières heures suivant leur commercialisation.

Nos agences proposent régulièrement des biens comme celui que vous cherchez

Ne ratez pas une opportunité, on vous alerte en priorité !

Êtes-vous actuellement propriétaire de votre bien ?
Créer une alerte
Je souhaite être alerté
Voir les biens correspondants