Agences immobilières CENTURY 21 : immobilier, achat, vente, location et activités de gestion immobilière
  1. Accueil
  2. Achat
  3. Achat Maison
  4. Achat Maison Morbihan (56)
  5. Achat Maison ARZON (56640)

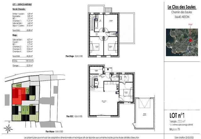
Maison à vendre 5 pièces - 109,14 m2 ARZON - 56

Ref : 13027

669 000 €

  • Honoraires charge vendeur
Maison à vendre - 5 pièces - 109,14 m2 - Arzon - 56 - BRETAGNE
Maison à vendre - 5 pièces - 109,14 m2 - Arzon - 56 - BRETAGNE
Envoyer un message
Message
Envoyer ce bien à un ami

Description

Coup de cœur au cœur du bourg d'Arzon

Découvrez cette superbe maison T5 neuve, alliant modernité et confort de vie absolu. Idéalement située à deux pas des commerces, cette propriété de 109 m² habitables sur un terrain de 220 m² est un véritable havre de paix.

Ses atouts majeurs :

Espace de vie : Un séjour lumineux avec cuisine ouverte de plus de 37 m².

Vie de plain-pied : Une suite parentale au rez-de-chaussée avec salle d'eau privative.

Espace nuit : 3 belles chambres à l'étage pour accueillir famille et amis.

Performance : Construite selon les dernières normes énergétiques pour un confort optimal et des économies garanties toute l'année.

Que ce soit pour votre résidence principale ou un pied-à-terre secondaire, profitez d'un emplacement idyllique où tout se fait à pied.

Vue globale

  • Surface totale : 131,4 m2
  • Surface habitable : 109,1 m2
  • Surface terrain : 223 m2
  • Nombre de pièces : 5
    • Entrée (6,4 m2)
    • Séjour (37,4 m2)
    • Cuisine
    • Chambre (11,3 m2)
    • Salle d'eau (4,5 m2)
    • WC (2,2 m2)
    • Buanderie (4,0 m2)
    • Chambre (10,1 m2)
    • Chambre (10,9 m2)
    • Chambre (10,9 m2)
    • Salle de bains (6,1 m2)
    • WC (1,2 m2)
    • couloir (4,0 m2)

Équipements

Les plus

P

Parking exterieur

Général

  • Parking exterieur : 2 place(s)
  • WC séparés
  • Chauffage : Pompe à chaleur
  • Façade : Enduit + pierres
  • Double vitrage
  • Clôture
  • Isolation : Murs et double vitrage

À savoir

Les performances énergétiques

Non soumis au DPE

Ce bien est proposé par l'agence CENTURY 21 Ar'zon Immobilier

CENTURY 21 Ar'zon Immobilier

CENTURY 21 Ar'zon Immobilier

Espace 21, Rond Point du Crouesty

56640 ARZON

02 97 53 66 77
qualitelis Votre agence est notée
Achat Vente
9,3/10

Nos offres

Notre agence immobilière à Arzon Espace 21, Rond Point du Crouesty vous propose :

Demande d'information sur cette maison de 5 pièces à ARZON (56)

Envoyer

Envoyer à un ami

Envoyer

Créer votre alerte

Rappel de vos critères de recherche :

Erreur dans les critères envoyés

Limite d'alertes atteinte

Cette alerte existe déjà

Cette alerte est déjà enregistrée pour cette adresse email. Vous continuerez à recevoir les biens correspondant à vos critères.

Une erreur est survenue

Merci de réessayer ultérieurement.

Votre alerte a été créée

Vous recevrez les biens correspondant à vos critères.

logo vente privées

48h

d’avance sur
le marché

Prenez un temps d’avance sur le marché en profitant gratuitement des Ventes Privées CENTURY 21

Si ce n’est déjà fait, allez compléter le profil de votre compte afin de pouvoir recevoir en avant-première des biens exclusifs, réservés à nos clients pendant les 48 premières heures suivant leur commercialisation.

Nos agences proposent régulièrement des biens comme celui que vous cherchez

Ne ratez pas une opportunité, on vous alerte en priorité !

Êtes-vous actuellement propriétaire de votre bien ?
Créer une alerte
Je souhaite être alerté
Voir les biens correspondants