Agences immobilières CENTURY 21 : immobilier, achat, vente, location et activités de gestion immobilière
  1. Accueil
  2. Achat
  3. Achat Appartement
  4. Achat Appartement Bouches-du-Rhone (13008)
  5. Achat Appartement MARSEILLE (13008)

Appartement T2 à vendre 2 pièces - 45,65 m2 MARSEILLE - 13008

Ref : 29813

289 000 €

  • Honoraires charge vendeur
Appartement T2 à vendre - 2 pièces - 45,65 m2 - Marseille - 13008 - PROVENCE-ALPES-COTE-D-AZUR
Appartement T2 à vendre - 2 pièces - 45,65 m2 - Marseille - 13008 - PROVENCE-ALPES-COTE-D-AZUR
Appartement T2 à vendre - 2 pièces - 45,65 m2 - Marseille - 13008 - PROVENCE-ALPES-COTE-D-AZUR
Appartement T2 à vendre - 2 pièces - 45,65 m2 - Marseille - 13008 - PROVENCE-ALPES-COTE-D-AZUR
Appartement T2 à vendre - 2 pièces - 45,65 m2 - Marseille - 13008 - PROVENCE-ALPES-COTE-D-AZUR
Appartement T2 à vendre - 2 pièces - 45,65 m2 - Marseille - 13008 - PROVENCE-ALPES-COTE-D-AZUR
Envoyer un message
Message
Envoyer ce bien à un ami

Description

Marseille 8ème VIEILLE-CHAPELLE/BONNEVEINE, Rez-de-jardin en type 2 de 45.65m².

Situé entre la Vieille Chapelle et Bonneveine, à deux pas des plages, de la mer et des commodités, votre agence Century 21 Can transactions vous propose à la vente un appartement en type 2, au centre du 8ème sud.

L'appartement bénéficie d'une belle pièce de vie avec cuisine ouverte de 25m² et d'une chambre confortable.
Nous sommes là en rez-de-jardin, ne donnant pas directement sur la rue, nous assurant calme, sécurité et tranquillité.
Une salle d'eau attenante à la chambre et un WC indépendant viennent compléter le bien.
Niveau extérieur, la magie opère: Terrasse de 17m² donnant sur 26m² de jardin avec pelouse synthétique de qualité, le tout exposé Sud-Est, sans vis-à-vis extérieur et au calme absolu !

Pour le stationnement: un box fermé en sous-sol, directement accessible par ascenseur, est inclus dans le prix.
Et si vous recevez du monde pour une garden-party, nous sommes sur un secteur préservé du tumulte urbain, le stationnement est aisé et gratuit devant la résidence.

Côté copropriété, nous sommes sur une copro à taille humaine (45 lots), pas de grande barre d'immeuble, et les habitants se félicitent de leur voisinage.
Ici, il fait bon vivre et il faut vraiment ne pas avoir le choix pour quitter la résidence.

Pas de débat sur le quartier, l'emplacement est top!
À seulement 1 minute à pieds de l'arrêt de bus des lignes 44 et 47, vous reliez le rond point du Prado, la plage et les multiples établissements scolaires du secteur. L'école primaire Freinet est juste en face, à 1min à pieds.
Proche de toutes commodités: Lidl, Biocoop et Carrefour Bonneveine pour les courses; Boulangerie, primeur, pharmacie et salle de sport à proximité immédiate pour votre confort quotidien; et l'escale Borély à 5min à pieds pour partager un verre, un diner et plus si affinité.
Pour les amoureux de la nature, le Parc Borély et son château ainsi que les plages marseillaises sont aisément accessibles à pieds, et le parc des calanques est à un coup de voiture.

L'avis de l'agent immobilier:
"Un rez-de-jardin en T2, c'est rare, surtout avec un VRAI extérieur.
Alors quand on m'a proposé de commercialiser celui-ci, j'ai tout de suite été enthousiaste!
Il est bien orienté, sécurisé comme rarement pour un rez-de-jardin, et la copro de 2003 est vraiment recherchée, pour son emplacement stratégique, son standing et son environnement idéal.
C'est le premier de cet acabit que j'ai le loisir d'avoir en mandat, c'est rare.
Généralement, y a toujours de gros points noirs, mais là, il rassemble les critères principaux que recherchent les acquéreurs.
Le visiter, c'est l'adopter. Parce qu'on a pas/peu de biens comparables sur le marché.
Appelez-vous pour le visiter! Ce serait dommage de passer à côté!"

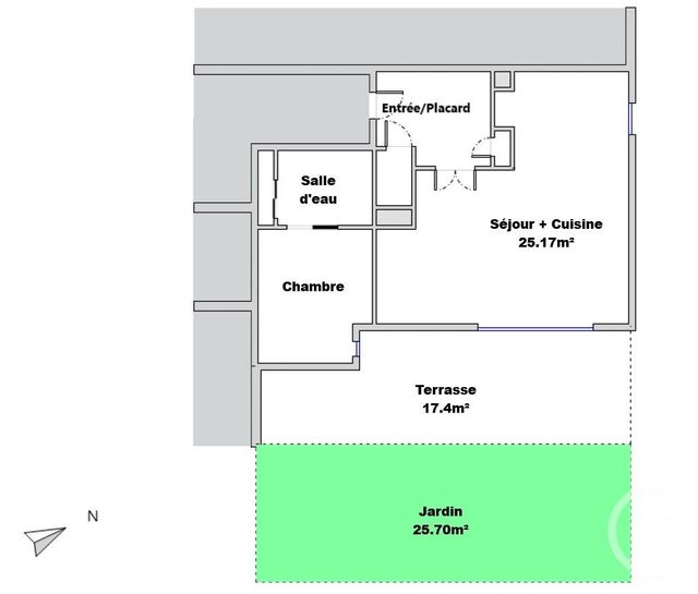
Vue globale

  • Surface totale : 45,7 m2
  • Surface habitable : 45,7 m2
  • Type d'appartement : T2
  • Étage : Rez-de-chaussée
  • Nombre de pièces : 2
    • Entrée (4,7 m2)
    • Séjour cuisine (25,2 m2)
    • Chambre (10,2 m2)
    • WC (1,2 m2)
    • Salle d'eau (4,4 m2)
    • Terrasse (17,4 m2)
    • Jardin (25,7 m2)
    • Box simple (13,2 m2)
  • Année construction : 2003

Équipements

Les plus

Accès personnes handicapées

P

Box ferme

Terrasse

Jardin

Général

  • Box ferme : 1 place(s)
  • WC séparés
  • Chauffage : Individuel electricité
  • Eau chaude : Cumulus
  • Ascenseur
  • Interphone
  • Videophone

À savoir

  • Charges / mois : 100 €
  • Taxe foncière : 1524 €

Copropriété

  • Nombre de Lots : 45
  • Charges courantes par an : 1200,0 €
  • Pas de procédure en cours

Les performances énergétiques

logement extrêmement performantlogement extrêmement peu performantconsommationémissions(énergie primaire)1766kWh/m2.ankg CO2/m2.an92 kWh/m²/an d'énergie finalePassoire énergétique
* Dont émissions de gaz à effet de serre peu d'émissions de CO2 Émissions de CO2 très importantes kgCO 2 /m 2 .an 6

Date du DPE : 11/12/2025

Montant estimé des dépenses annuelles d'énergie pour un usage standard entre 790,0 € et 1130,0 € indexées aux années 2021, 2022, 2023 (abonnements compris).

Bien proposé par Vincent laneque EI, agent commercial (RSAC 909631871)

Ce bien est proposé par l'agence CENTURY 21 Can Transactions

CENTURY 21 Can Transactions

CENTURY 21 Can Transactions

101 boulevard du Sablier

13008 MARSEILLE

04 91 16 70 30
qualitelis Votre agence est notée
Achat Vente
9,4/10
Location Gestion
9,1/10

Nos offres

Notre agence immobilière à Marseille Boulevard du Sablier vous propose :

Demande d'information sur cet appartement de 2 pièces à MARSEILLE (13008)

Envoyer

Envoyer à un ami

Envoyer

Créer votre alerte

Rappel de vos critères de recherche :

Erreur dans les critères envoyés

Limite d'alertes atteinte

Cette alerte existe déjà

Cette alerte est déjà enregistrée pour cette adresse email. Vous continuerez à recevoir les biens correspondant à vos critères.

Une erreur est survenue

Merci de réessayer ultérieurement.

Votre alerte a été créée

Vous recevrez les biens correspondant à vos critères.

logo vente privées

48h

d’avance sur
le marché

Prenez un temps d’avance sur le marché en profitant gratuitement des Ventes Privées CENTURY 21

Si ce n’est déjà fait, allez compléter le profil de votre compte afin de pouvoir recevoir en avant-première des biens exclusifs, réservés à nos clients pendant les 48 premières heures suivant leur commercialisation.

Nos agences proposent régulièrement des biens comme celui que vous cherchez

Ne ratez pas une opportunité, on vous alerte en priorité !

Êtes-vous actuellement propriétaire de votre bien ?
Créer une alerte
Je souhaite être alerté
Voir les biens correspondants