Agences immobilières CENTURY 21 : immobilier, achat, vente, location et activités de gestion immobilière
  1. Accueil
  2. Achat
  3. Achat Appartement
  4. Achat Appartement Loire-Atlantique (44)
  5. Achat Appartement NANTES (44300)

Appartement T1 à vendre 1 pièce - 30,28 m2 NANTES - 44

Ref : 329

185 000 €

  • Honoraires charge vendeur
Appartement T1 à vendre - 1 pièce - 30,28 m2 - Nantes - 44 - PAYS-DE-LOIRE
Appartement T1 à vendre - 1 pièce - 30,28 m2 - Nantes - 44 - PAYS-DE-LOIRE
Appartement T1 à vendre - 1 pièce - 30,28 m2 - Nantes - 44 - PAYS-DE-LOIRE
Appartement T1 à vendre - 1 pièce - 30,28 m2 - Nantes - 44 - PAYS-DE-LOIRE
Envoyer un message
Message
Envoyer ce bien à un ami

Description

NANTES - DOULON

Découvrez ce beau studio situé au 3ème étage (sur 4) avec ascenseur d'une résidence RT2012 qui sera livrée fin 2026.
Vous profiterez d'une belle pièce de vie avec très lumineuse (double orientation) de 25m² donne sur la loggia de 6m².

Au sous-sol vous disposerez d'une place de stationnement privative.
Belles prestations que ce soit au niveau de la propriété que de l'appartement.
Vous profiterez pendant les beaux jours du jardin partagé de la résidence.
A proximité de toutes les commodités (commerces, ligne de bus 10,11,12 , Tram ligne 1). Ecoles primaires et collèges à moins de 5 minutes à pied.
Lycées publiques et privés accessibles en moins de 5 minutes en voiture.
Idéal investisseurs ou primo-accédants.
N'hésitez pas à nous contacter pour plus d'informations.

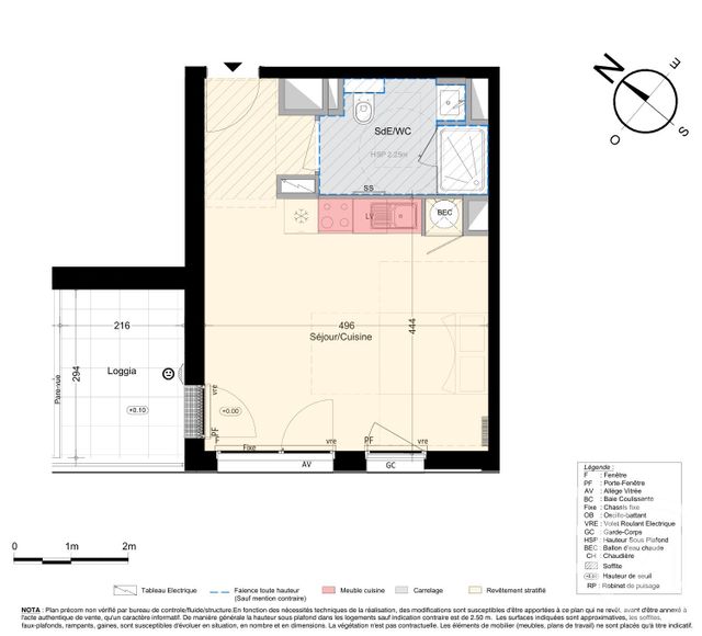
Vue globale

  • Surface totale : 30,3 m2
  • Surface habitable : 30,3 m2
  • Type d'appartement : T1
  • Étage : 3ème
  • Nombre de pièces : 1
    • Séjour - Cuisine (24,9 m2)
    • Salle d'eau/WC (5,4 m2)
    • Loggia (6,4 m2)

Équipements

Les plus

P

Parking couvert

Terrasse

Jardin

Général

  • Parking couvert : 1 place(s)
  • Chauffage : Individuel radiateur gaz
  • Eau chaude : Chaudière gaz
  • Ascenseur

À savoir

Les performances énergétiques

Non soumis au DPE

Ce bien est proposé par l'agence CENTURY 21 Doulon

CENTURY 21 Doulon

CENTURY 21 Doulon

120 boulevard des Poilus

44300 NANTES

02 52 10 85 53
qualitelis Votre agence est notée
Achat Vente
9,2/10
Location Gestion
9,6/10

Nos offres

Notre agence immobilière à Nantes vous propose :

Demande d'information sur cet appartement de 1 pièce à NANTES (44)

Envoyer

Envoyer à un ami

Envoyer

Créer votre alerte

Rappel de vos critères de recherche :

Erreur dans les critères envoyés

Limite d'alertes atteinte

Cette alerte existe déjà

Cette alerte est déjà enregistrée pour cette adresse email. Vous continuerez à recevoir les biens correspondant à vos critères.

Une erreur est survenue

Merci de réessayer ultérieurement.

Votre alerte a été créée

Vous recevrez les biens correspondant à vos critères.

logo vente privées

48h

d’avance sur
le marché

Prenez un temps d’avance sur le marché en profitant gratuitement des Ventes Privées CENTURY 21

Si ce n’est déjà fait, allez compléter le profil de votre compte afin de pouvoir recevoir en avant-première des biens exclusifs, réservés à nos clients pendant les 48 premières heures suivant leur commercialisation.

Nos agences proposent régulièrement des biens comme celui que vous cherchez

Ne ratez pas une opportunité, on vous alerte en priorité !

Êtes-vous actuellement propriétaire de votre bien ?
Créer une alerte
Je souhaite être alerté
Voir les biens correspondants